Das Objekt
Dieses Mittelreihenhaus aus dem Jahr 1953 bietet auf ca. 75 m² Wohnfläche und insgesamt 4 Zimmern ein kompaktes, super gut geschnittenes Zuhause. Das Haus verteilt sich über 2 Etagen plus 1 im Jahr 2018 ausgebautes Dachgeschoss sowie über 1 Teilkeller.
Der Außenbereich überzeugt mit 1 überdachten Terrasse, dem liebevoll angelegten Garten mit alten Apfelbäumen sowie 1 großen Gartenhaus für Räder, Gartenmöbel … Hier könnten Sie auch Ihre Werkstatt oder 1 Atelier einrichten. Das Grundstück ist auch nach hinten über 1 Gartenpforte betretbar.
Die Haustechnik ist auf aktuellem Stand: Eine Gaszentralheizung aus 2016 sorgt für Wärme, die Elektrik ist ebenfalls von 2016. Das Haus ist ca. 2006 gedämmt.
Wie geht’s dem Haus? Super. Das Haus wurde 2016 totalsaniert – solide & hochwertig. Alles ist neu gemacht: Echtholzparkett, Türen, Bäder, Küche, Heizung, Elektro, Zuleitungen u. v. m. Besser können Sie es nicht haben.
Sie leben in 1 Gemeinschaft von 5 Nachbarn (inkl. Ihnen). Ihre Betriebskosten betragen ca. 251 Euro. Jedes Haus ist Volleigentum & somit nur Ihre Sache. Die Zuwegungen teilen Sie sich mit den Nachbarn.
Das Haus
Kurzer Rundflug durchs Gehege! Schnell hereingeflattert durch das Gartentor & unter dem entzückenden Heckenrundbogen hindurch, landen Sie direkt im Windfang Ihres neuen Nestes. Von hier aus geht’s in alle Richtungen: 1 Treppe hinauf ins Obergeschoss, 1 hinunter in den Keller & geradeaus hinein in den lichtdurchfluteten Wohn-, Ess- & Küchenbereich.
Links liegt 1 Gäste-WC mit Dusche – kuschelig warm dank zusätzlicher Fußbodenheizung. Rechts flattern Sie in das große Kinderzimmer. Herzstück ist aber das luftige Wohnzimmer mit offener Einbauküche. Das Schönste: der freie Blick auf die Sonnenterrasse aus Holz, wo 1 moderne Überdachung für windstille Ruheplätze auch noch im Herbst sorgt.
Im Garten warten 1 Apfelbaum, 1 kleines Gartenhaus und viel Platz zum Chillen, Grillen & Freunde empfangen. Sie werden es lieben. Versprochen.
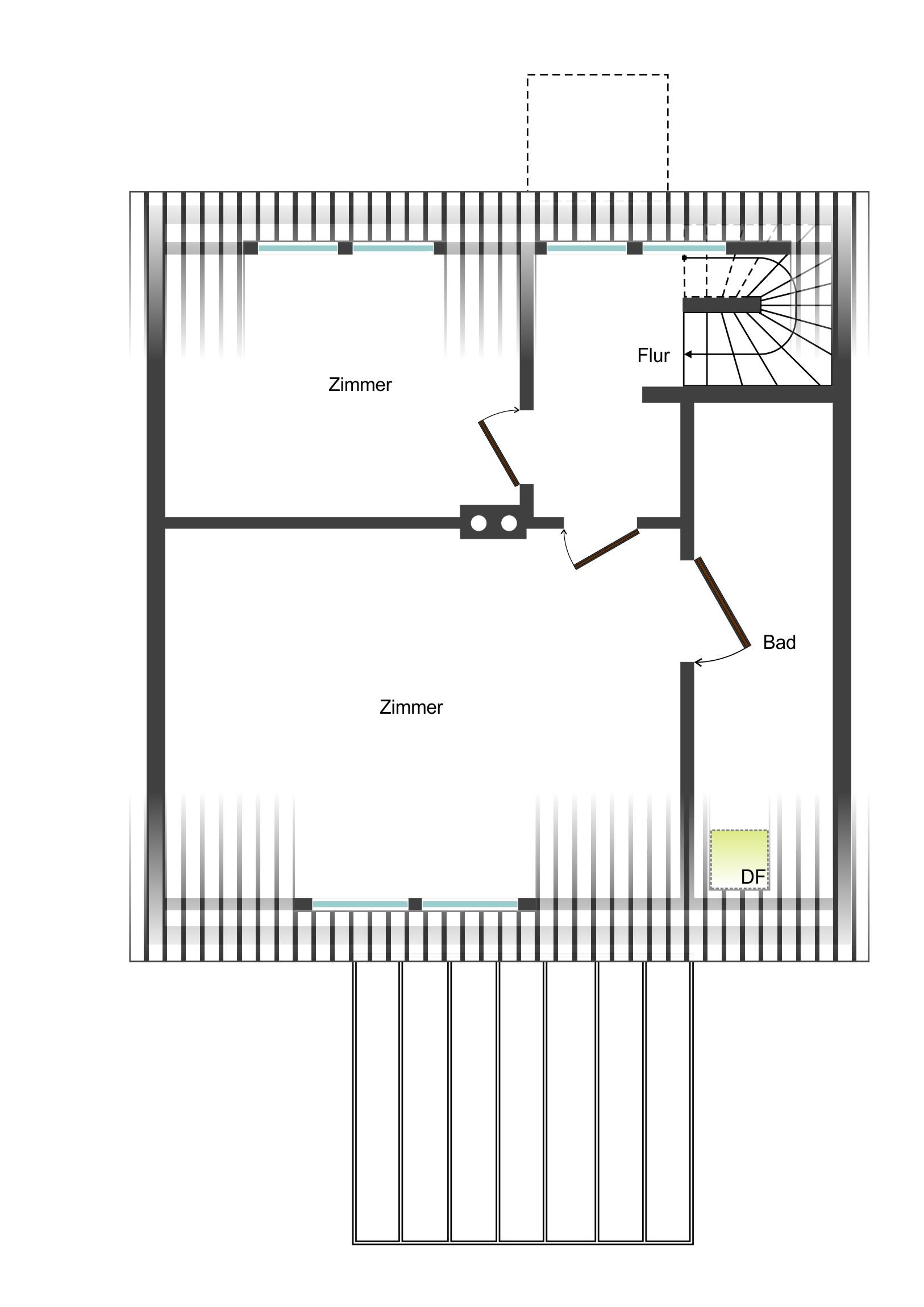
Im Obergeschoss warten 2 weitere Zimmer: 1 gemütliches Schlafnest & 1 großzügiges Arbeitszimmer. Von hier flattern Sie durch 1 Glastür direkt ins Wellness-Bad mit Dusche & Wanne – modern in Beige-Weiß, auch mit Fußbodenheizung. Aus dem kleinen Flur windet sich 1 Wendeltreppe hinauf ins Dachnest: 2018 ausgebaut mit kuscheligem weißen Teppich & hellen Dachfenstern. Zudem ist das Haus teilunterkellert mit Waschküche, Heizraum & große Vorratskeller.
Wir möchten noch erwähnen, dass dieses Nest 1 Raumwunder ist, denn es wirkt so viel größer als 75 m². Der Zustand ist fantastisch gut. Hier wurde 2016 grundsolide & mit sehr viel Geschmack saniert. Sie müssen nur einige Ecken streichen & können sofort einziehen.
Die Lage
Raus aus der Stadt, rein ins Grüne. Die Friedländer Straße 54 D liegt mitten in Bramfeld & doch wunderbar ruhig. Bramfeld ist ein gewachsenes Quartier. Typisch sind die 1950er/60er Jahre Wohnblöcke, Reihenhäuser & Einfamilienhäuser. Viele Kleingärten, Grünanlagen & der Bramfelder See machen das Wohnen familienfreundlich.
Futter & Vorrat: Ob Körner, Krümel oder Kaffee – hier finden Sie alles gleich ums Eck. Das Zentrum ist die Bramfelder Chaussee mit vielen Geschäften, Supermärkten & der Marktplatz Galerie Bramfeld. Es gibt 2 Wochenmärkte (Herthastraße & Bramfelder Dorfplatz). Die Galerie Bramfeld mit rund 60 Läden ist rund 5 Minuten mit dem Auto entfernt: Es gibt alle Discounter, Budni, dazu kleine Händler, Apotheken, Wochenmarktstände. Richtig niedlich.
Damit die Flügel nicht einrosten: Das Angebot ist vielfältig. Von Squash, Schwimmen, Fitness u. v. m. Sie können alles trainieren. Wer lieber durch die Natur flattert, dreht seine Runden am Bramfelder See oder folgt dem grünen Band der Seebek.
Hier ist es richtig kükenfreundlich: Bramfeld ist beste Lage für Familien. Kindergärten, 3 Grundschulen & 4 weiterführende Schulen stehen zur Auswahl.
Die U5 soll 2030 kommen! Noch ist jedoch hier U-Bahnfreie Zone. Aber mit den Metrobuslinien fliegst du schnell Richtung City, Barmbek oder Wandsbek. Radwege ziehen sich durchs Viertel & wer auf 4 Rädern unterwegs ist, erreicht City Nord oder die Autobahnen fix.
Willkommen im Nest! Ihre stadtteilMAKLER




