Das Haus
Das Haus wurde aus Stahlbeton 1984 gebaut & mit rotbraunen Handstrichziegeln verblendet. Es umfasst 13 Wohn- & 2 Gewerbeeinheiten. Das Gehege war von Beginn an als WEG-Gemeinschaft konzipiert. Es wurde also die letzten 40 Jahre kontinuierlich gepflegt. In den letzten 35 Jahren war Ihr Nest an 1 Ehepaar vermietet.
Beheizt wird Ihre Immobilie über 1 Gaszentralheizung. Das Haus ist ausgerüstet mit: Fahrstuhl & Tiefgarage & Waschküche nebst 2 Trockenräumen. Zur Nesteinheit gehören 1 großzügiger Keller sowie 1 TG-Stellplatz. Dieser ist grundbuchlich der Wohnung zugeordnet und im Kaufpreis enthalten.
Das monatliche Wohngeld beträgt 481,60 €. Darin enthalten sind 128,60 € für die Zuführung zur Instandhaltungsrücklage. Diese belief sich zum 31.12.2024 auf 118.500 €. Insgesamt macht alles 1 sehr soliden Eindruck. Genau wie dieses Haus. Die Hausverwaltung ist sehr höflich & hilfsbereit.
Was wurde beschlossen?
– 2023: Erneuerung der Briefkasten-Anlage
– 2025: Umbau des Hauseingangsbereichs sowie Beschluss zur Prüfung der Balkone (Absplitterungen an Unterseiten)
Sie wollen mehr wissen? Alle relevanten Unterlagen erhalten Sie über 1 Download-Link nach der Besichtigung.
Die Wohnung
Wir lieben Altbau – keine Frage. Aber unsere heimlichen Favoriten sind die 80er. Warum? Solide Bauqualität & noch bezahlbar. Mit dem richtigen Innendesign hat diese Wohnung das Potenzial für 1 echten Nestklassiker. Wie das geht, erzählen wir bei der Besichtigung.
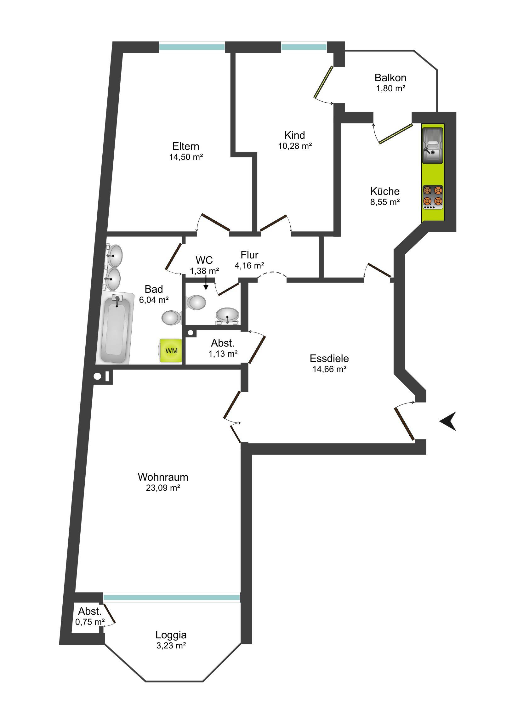
Kurzer Rundflug! Sie landen im quadratischen Flur, der als Esszimmer konzipiert Leben in Ihr Nest bringt. Von hier aus gehen alle Zimmer ab. Geradeaus geht’s ins Wohnzimmer mit großem Balkon & bodentiefen Fenstern. Rechts liegt aktuell die Küche, die in Zukunft auch
1 Kinder- oder Arbeitszimmer sein kann – ebenfalls mit Balkon. Hier genießen Sie Ihren Morgenkaffee in der Sonne mit Blick auf den grünen Garten & Zugang zum Lindenpark.
Weiter geht’s über 1 kleinen Flur zu 2 weiteren Schlafzimmern (14,5 & 10,3 m²) & dem großen Badezimmer mit Badewanne & 1 separatem Gäste-WC. Sie haben 2 praktische Abstellkammern, 1 vom Flur, 1 vom Balkon zugänglich. Alles ist 80er – die Türen, der Fußboden, die Bäder, die Elektrik. Aber die Wände sind glatt verputzt & frisch weiß gestrichen. Wir sagen vorweg: Es empfiehlt sich 1 Sanierung (neue Bäder, neuer Boden, neue Küche, neue Elektrik). Wir beraten Sie gerne & bringen Ideen mit zur Besichtigung.
Der Grundriss hat Potenzial zur echten Nestperle. Wir sagen: Bauen Sie um. Wir würden Ihre Küche (die alte ist unschön) vorne platzieren – Wohnen & Kochen somit zeitgemäß verbinden. Diese Neuplanung ergibt dann 2 Kinderzimmer plus Schlafzimmer im Nest.
Unser Nestbau-Service: Wir helfen Ihnen gerne bei der Suche nach Handwerkern & beraten Sie auch bei Sanierungsmaßnahmen.
Die Lage
Sie sind verliebt in die Schanze? Mitten im urbanen Puls & trotzdem mit Raum zum Atmen liegt die Eimsbütteler Chaussee 26 am ruhigen, grünen Rand der Schanze – Ihr Ort, der Alltag & Lebenslust auf schönste Weise verbindet.
Bestens verbunden! Öffentliche Verkehrsmittel liegen nur einen Steinwurf entfernt. Die nächsten Bushaltestellen erreichen Sie in wenigen Minuten zu Fuß. Von hier halten Linien wie 20, 25 und 3, die zügig durch Eimsbüttel, Sternschanze & weiter in die City oder nach Altona fahren. Nächste U-Bahnlinie ist die U2 Christuskirche, nächste S-Bahn-Haltestelle ist Sternschanze mit Anschluss an S1 bis S7 sowie auch die U-Bahn U3.
Bestens versorgt! Für den täglichen Bedarf ist ebenfalls gesorgt – direkt gegenüber ist EDEKA Hirche – klassischer Vollsortiment-Supermarkt auf der Eimsbütteler Chaussee. Ein Stück weiter Budni. In die andere Richtung ALDI. Und es gibt viele kleine türkische Obst- & Gemüseläden für die praktische & gesunde Nahversorgung. Es gibt Bäcker & Blumenläden, Friseure und Maniküre. Alles, was Ihr Herz begehrt.
Bestens umsorgt! Im Schanzen- und Eimsbüttel-Umfeld gibt es zahlreiche medizinische Versorgungsangebote – von Allgemeinmedizin bis Facharztpraxen direkt im Viertel, zum Beispiel Arztpraxen entlang der Chaussee- und Schulterblatt-Achse.
Was diese Lage so besonders macht? Die Schanze selbst. Keine Ecke in der Stadt strahlt so sehr Lebendigkeit & Vielfalt aus – von gemütlichen Frühstückscafés, Döner & Falafel, Burger & Delphi-Theater, Boxtraining & Yogamatten, Sterne-Restaurant & Juwelier – der Mix macht’s halt so toll. Hier trifft alles aufeinander, was Laune macht & Leben ausmacht. Sie atmen urban mit jeder Pore. Aber das wissen Sie bestimmt schon alles, denn sonst würden Sie hier kein Nest suchen.
Sie wollen Schanze für 4 bezahlbar? Voilà. Dann ist es Zeit, sich das Nest mal mit uns anzusehen. Wir wissen, es wird perfekt für Sie werden. Hier wohnt echtes Glücksnest.
Willkommen im Nest! Ihre stadtteilMAKLER



